Descripción
Chalet adosado espacioso para familias con maravillosas vistas al mar de toda la costa de Torremolinos, Fuengirola y Benalmádena, situada en Benalmádena Pueblo. Consta de 233 m², ideal para una vida familiar cómoda. Con buena ubicación, fácil y rápido acceso a la A7, combina privacidad, amplitud y funcionalidad.
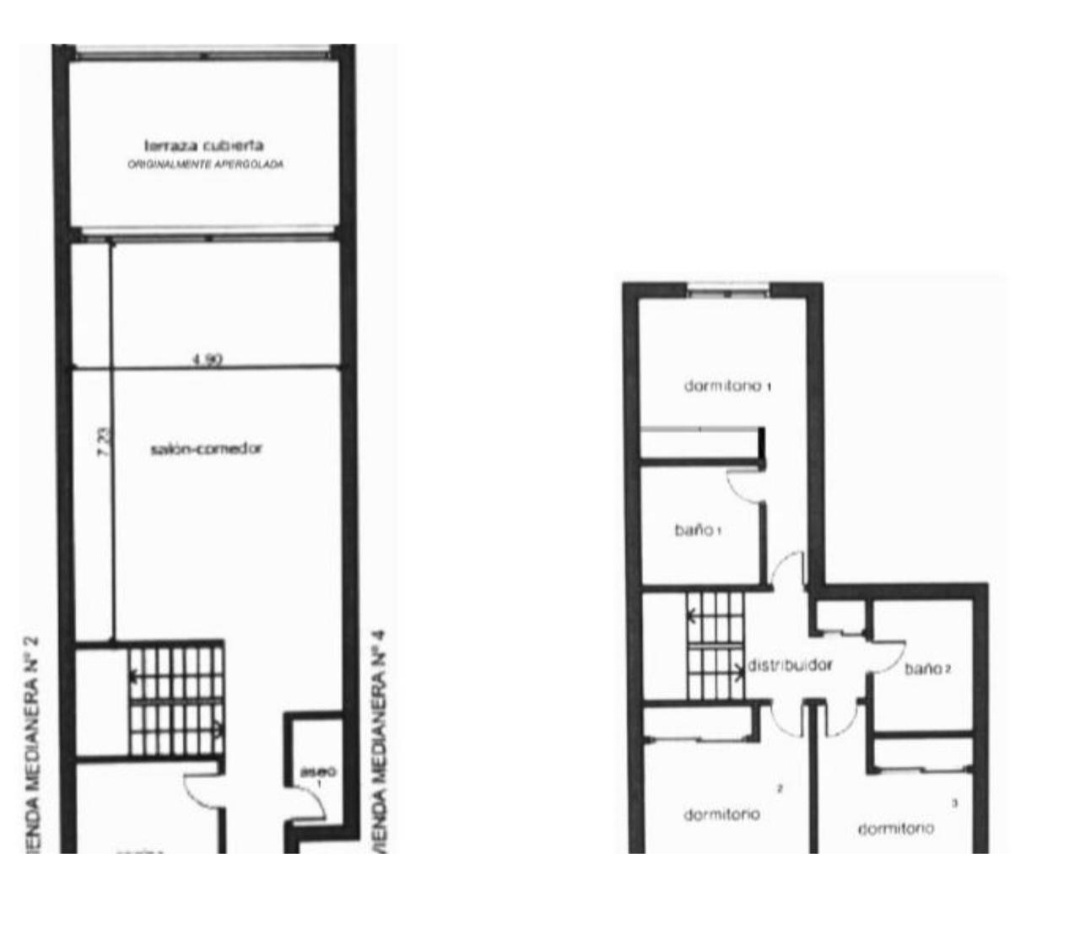
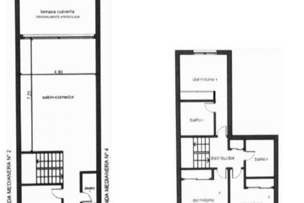
La distribución de la vivienda consta de:
- Planta Baja: un amplio salón con aire acondicionado, cocina independiente equipada, aseo, amplia terraza trasera con barbacoa y otra delantera con acceso a la entrada de la comunidad.
- Planta Primera: 2 acogedoras habitaciones con armarios empotrados - baño en el pasillo; y habitación principal con baño en suite, armario empotrado, aire acondicionado y vistas al mar.
- Planta Segunda: Una habitación con baño incorporado y aire acondicionado, trastero, y una terraza exterior con unas preciosas vistas al mar.
- Planta Sótano: Garaje con capacidad para dos vehículos con puerta automática para el acceso a la vivienda y capacidad para utilizar una parte como almacén.
Benalmádena Pueblo es uno de los lugares más demandados y pintorescos de la costa de la Costa del Sol. La ubicación de la vivienda es ideal para quienes buscan confort y tranquilidad, estando a la vez a poca distancia de todas las comodidades, gracias a su cercanía a la playa y su atmósfera única. En las inmediaciones dispones de colegio, guardería, farmacia, zonas verdes, supermercado, parada de bus, gimnasio, hospital, bares y restaurantes.
En la comunidad encontrarás zonas verdes, piscina, entrada al garaje comunitario con puerta automática, vigilancia por cámaras y una tranquilidad que no lo puedes encontrar en otras zonas más céntricas, pero siempre tienes la posibilidad de bajar al pueblo o coger el coche para estar en poco minutos en la playa. Esta zona es perfecta tanto para vivir de manera permanente como para pasar las vacaciones, ofreciendo una combinación única de privacidad y comodidad.
Además, la zona se encuentra muy cerca de la estación de tren, lo que garantiza un fácil acceso a otras ciudades y áreas de la Costa del Sol, y a solo 15 minutos en coche del aeropuerto.
Es la oportunidad que estabas buscando!
Características
Generales
Superficies
Estado
Equipamiento
Servicios
Calidades
Precio
431.570 €
1.852 €
Hipoteca
CUOTA MENSUAL
---
Importe total
Inmueble + gastos - entrada
---
Ver desglose
Los resultados son orientativos y no vinculantes y estan calculados con los datos introducidos.
Certificado energético
|
CALIFICACIÓN ENERGÉTICA
|
Consumo energía kW h / m2 año |
Emisiones CO2 kg CO2 / m2 año |
|---|---|---|
| A | ||
| B | ||
| C | ||
| D | ||
| E | ||
| F | ||
| G |
Situación y Entorno
Benalmádena Pueblo






















